|
DIMENSIONAL DATA |
HEIGHT & WIDTH DIMENSIONS |
REAR SWING DOOR OPENING |
REAR ROLL-UP DOOR OPENING |
SIDE DOOR OPENING SINGLE PANEL |
SIDE DOOR OPENING DOUBLE PANEL |
|||||||
|
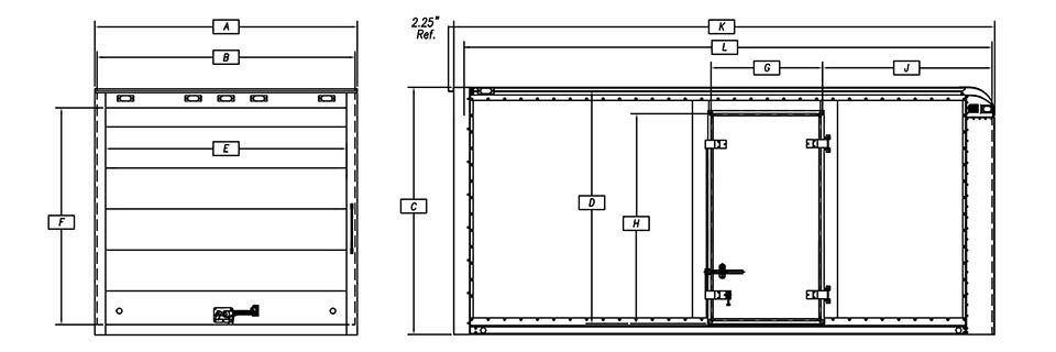
A |
B |
C* |
D** |
E |
F |
E |
F |
G |
H |
G |
H |
|
|
GVFD79 |
96 |
94-1/2 |
85-3/8 |
79-1/8 |
88 |
73-1/4 |
88 |
73-1/4 |
40-11/16 |
70-11/16 |
50-3/8 |
70-11/16 |
|
GVFD85 |
96 |
94-1/2 |
85-3/8 |
79-1/8 |
88 |
79-1/4 |
88 |
79-1/4 |
40-11/16 |
76-11/16 |
50-3/8 |
76-11/16 |
|
GVFD91 |
96 |
94-1/2 |
85-3/8 |
79-1/8 |
88 |
85-1/4 |
88 |
85-1/4 |
40-11/16 |
82-11/16 |
50-3/8 |
82-11/16 |
|
GVFD97 |
96 |
94-1/2 |
85-3/8 |
79-1/8 |
88 |
91-1/4 |
88 |
91-1/4 |
40-11/16 |
88-11/16 |
50-3/8 |
88-11/16 |
|
GVFD103 |
96 |
94-1/2 |
85-3/8 |
79-1/8 |
88 |
97-1/4 |
88 |
97-1/4 |
40-11/16 |
94-11/16 |
50-3/8 |
94-11/16 |
|
GVFD109 |
96 |
94-1/2 |
85-3/8 |
79-1/8 |
88 |
103-1/4 |
88 |
103-1/4 |
40-11/16 |
100-11/16 |
50-3/8 |
100-11/16 |
Notes:
*1.) Exterior Height Includes Roof Crown But Does Not Include Body Longitudinales.
2.) Interior Width Based On 1/2" Core FRP Panels (18' - 28' Bodies). Add 1/4" To Interior Width For 3/8" Core FRP Panels (10'-16' Bodies).
**3.) Subtract 1/4" From Interior Height For Bodies 16' And Under Due To 1-3/8" Floor.
|
BODY LENGTH DIMENSIONS |
||||||||||
|
NOMINAL LENGTH |
10 |
12 |
14 |
16 |
18 |
20 |
22 |
24 |
26 |
28 |
|
K |
10' 5-5/8" |
10' 5-5/8" |
10' 5-5/8" |
10' 5-5/8" |
10' 5-5/8" |
10' 5-5/8" |
10' 5-5/8" |
10' 5-5/8" |
10' 5-5/8" |
10' 5-5/8" |
|
L |
10' 1" |
12' 1" |
14' 1" |
16' 1" |
18' 1" |
20' 1" |
22' 1" |
24' 1" |
26' 1" |
28' 1" |
Notes:
1.) Inside Length Is Based On Roll-up Rear Door And 1/2" Core Frp Front Panel. Add 1-1/2" If Body Has Swing Doors.
2.) Exterior Light Is Rear Light Protector. If Body Does Not Have A Liftgate Or Dock Bumper, Add 2-1/4" To Overall Length To Cover Rear Light Protector.
|
CALCULATED WEIGHT CHART ** |
||||||||||
|
BODY HEIGHT |
BODY LENGTH |
|||||||||
|
10 |
12 |
14 |
16 |
18 |
20 |
22 |
24 |
26 |
28 |
|
|
GVFD79 |
1656 |
1856 |
2044 |
2241 |
2633 |
2842 |
3060 |
3258 |
3491 |
3699 |
|
GVFD85 |
1710 |
1914 |
2100 |
2307 |
2711 |
2925 |
3147 |
3350 |
3588 |
3801 |
|
GVFD91 |
1749 |
1958 |
2154 |
2358 |
2774 |
2992 |
3220 |
3427 |
3670 |
3888 |
|
GVFD97 |
1808 |
2020 |
2219 |
2428 |
2855 |
3079 |
3311 |
3523 |
3770 |
3993 |
|
GVFD103 |
---- |
---- |
2267 |
2479 |
2918 |
3146 |
3383 |
3600 |
3852 |
4080 |
|
GVFD109 |
---- |
---- |
2323 |
2540 |
2990 |
3223 |
3464 |
3686 |
3943 |
4175 |
|
STANDARD SIDE DOOR LOCATIONS |
||||||||||
|
BODY LENGTH |
10 |
12 |
14 |
16 |
18 |
20 |
22 |
24 |
26 |
28 |
|
J |
28" |
60" |
||||||||
Notes:
1.) Foremost Location Of Side Door Is 16" Fron Inside Front Panel.
2.) Door Can Be Moved Fore And Aft Of Standard Location On 2" Increments Only.
A= Overall Width
B= Interior Width
C = Extterior Height*
D = Interior Height**
E = Rear Door Opening Width
F = Rear Door Opening Height
G = Side Door Opening Width
H = Side Door Opening Height
J = Leading Edge Of Side Door To Inside Front Of Body
K = Exterior Length Of Body***
L = Inside Front Panel To Inside Rear Door Panel
10' - 16' Bodies Include:
-Crossmembers On 16" Centers
-3/8" Core Panels On Sides
-1/2" Core Panel On Front
-1-3/8" Pine Floor
18' - 28' Bodies Include:
-Crossmembers On 12" Centers
-1/2" Core Panels On Sides And Front
-1-1/8" Laminated Hardwood Floor
Body Weight Includes:
Base Body, O/h Rear Door, D.o.t. Underide, Mud Flaps, Lighting, Per Fmvss 108, Mounting Kit, Frp Panels On Sides And Front.
Weight Tolerance = ± 3%
All Dimensions, Weights, And Measurements Specified Herein Are Subject To Morgan's Manufacturing Tolerances, May Change Without Notice, And May Vary Depending On Options Selected. Please Contact Morgan For Measure-ments For Your Particular Truck Body And Chassis Specifications.